BRIARGATE — On Tuesday, Nov. 2, residents in Briargate voted on "Proposed Colorado Springs Briargate General Improvement District 2021 Ballot Issue 6B," which would raise property taxes for some residents in Briargate in order to correct a tax inequity.
Unofficial results as of 11:27 p.m. with 90% of precincts reporting
| Briargate 6B | Votes | Percentage |
| Yes | 3,881 | 62% |
| No | 2,346 | 38% |
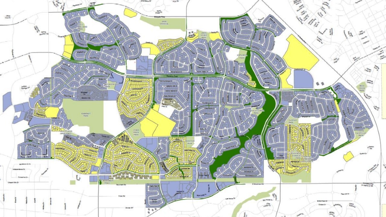
The Briargate Special Improvement Maintenance District (BSIMD) is primarily responsible for maintaining the common areas by Chapel Hills, Woodmen Road, Briargate Parkway, and Powers Boulevard.
However, according to the City of Colorado Springs, of the 9,864 properties within the BSIMD, only 7,603 currently pay the property tax to support BSIMD operations. That leaves 2,261 properties not paying the taxes that continue to receive benefits such as higher home values.
City Councilmember Randy Helms told News 5 that the issue was identified a few years ago by the Briargate Citizens Committee. Helms told News 5 that he speculates the issue developed over time when new properties were built but weren't added to the improvement district.
The city posted a map on its website that shows the current tax conditions. According to the map's legend, the grey areas are the taxed areas and the untaxed areas are in yellow.

In addition to tax inequity, the BSIMD says they have been experiencing budget shortfalls since 2016.
Councilmember Helms said that the loss of revenue can be seen as several areas are now blighted such as an open space and a volleyball court.
"It was really beautiful but it had to be let go because we couldn't hire the proper maintenance people to take care of it," said Helms, "it went brown and has never recovered."
Proponents of Ballot Issue 6B say that voting "YES" will solve these issues.
If Ballot Issue 6B passes, a new Colorado Springs Briargate General Improvement District 2021 (GID) would be created. The new improvement district would take over the responsibilities of the BSIMD and would include the properties that weren't being taxed. The city estimates that would generate $1.4 million per year.
According to the ballot's language, the funds "derived from the tax increase serve as an alternative to and replacement for the Briargate Special Improvement Maintenance District Mill Levy so that the properties currently paying the Briargate Special Improvement Maintenance District Mill Levy will not see an overall increase in taxes."
According to the BSIMD's website, right now property owners pay about $7-$10 per month, which averages out to $100 in annual property taxes which are paid to the BSIMD.
_____
KOAA News5 on your time, streaming on your Roku, FireTV, AppleTV and AndroidTV.
News5 App | First Alert 5 Weather App
Youtube | Facebook | Instagram | Twitter